Location
Erimi, Limassol
Status
Under Development
Available Houses
NONE
House Details
685 | SOLD
698A | SOLD
698B | SOLD
685 | SOLD
Detached Luxury Villa | SOLD
Villa is located on a hill in Erimi area in Limassol with panoramic views of Limassol and Episcopi bay. with easy access to the Limassol and Pafos highway, 10 minutes from the center of Limassol and 30 minutes to Pafos Airport, and 10 minutes to the famous Curium Beach. This villa is a perfect modern design home that will take care of all your family needs with a very spacious garden area.
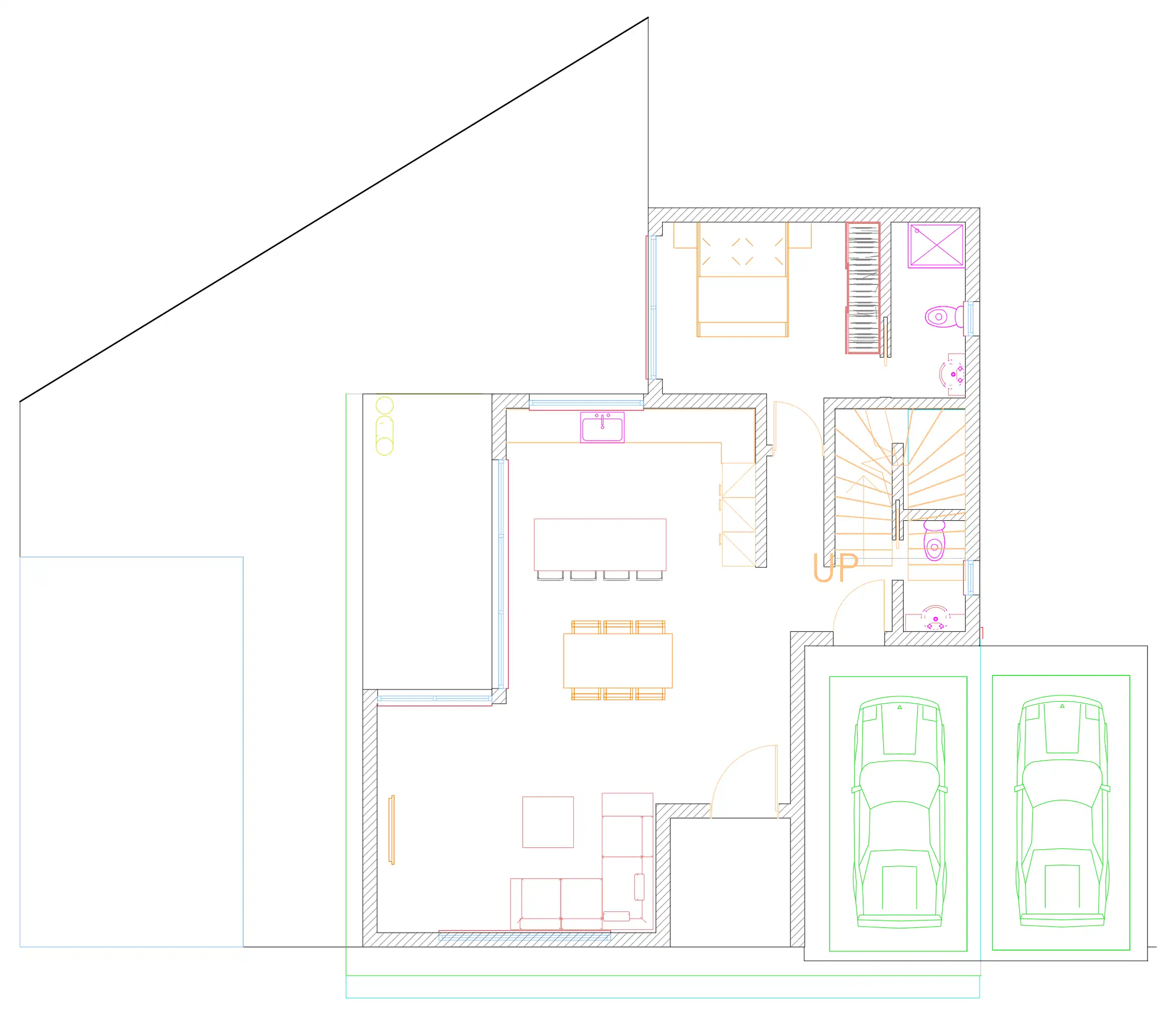
Ground Floor Description: Living Room / Dining Room / Kitchen Open Plan, Guest WC, 1 Bedroom En Suite, Covered / Uncovered Veranda
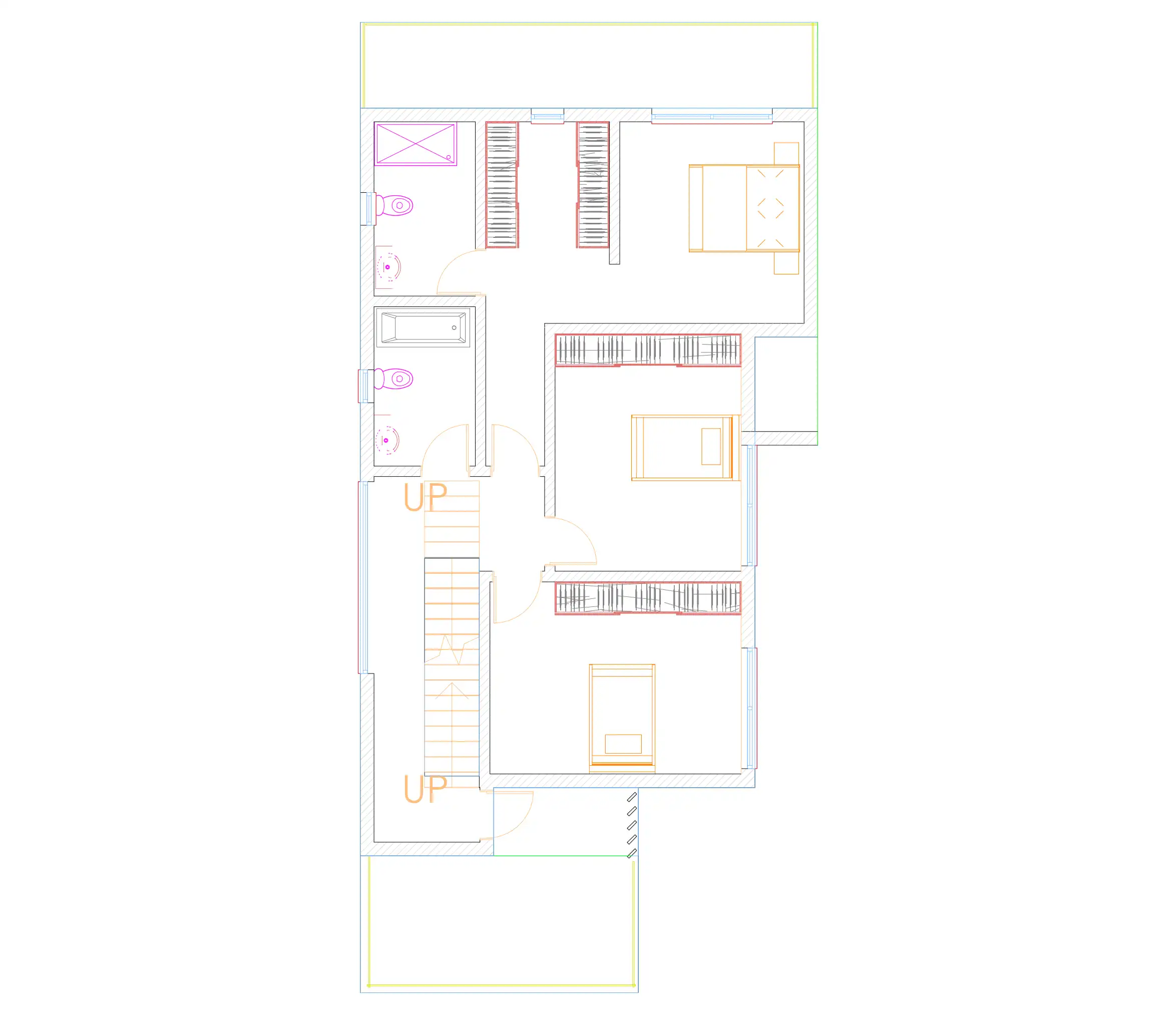
First Floor Description: 3 Bedrooms (Master Bedroom En Suite / Walk In Wardrobe), Main Bathroom, Covered Veranda, Laundry / Storage Area​
Features and Provisions
- Plot Size: 596m2
- Covered Area: 190m2
- Verandas: Covered 21m2 / Uncovered 67m2
- Parking Side by Side: 33m2
- Available Space for Roof Garden: 55 m2
- Provision for swimming pool size 8x4
- Provision for electric car charger
- Photovoltaic panels 4kwh included
- Provision for electrical shutters
- Provision for electric gate
- Provision for fireplace
- Electric quick water heating and pressure system are included
Floor Plans
Overview
Ground Floor Plan
1st Floor Plan



698A | SOLD
Detached Luxury Villa | SOLD
Villa is located on a hill in Erimi area in Limassol with panoramic views of Limassol and Episcopi bay. with easy access to the Limassol and Pafos highway, 10 minutes from the center of Limassol and 30 minutes to Pafos Airport, and 10 minutes to the famous Curium Beach. This villa is a perfect modern design home that will take care of all your family needs with a very spacious garden area.
Ground Floor Description: Living Room / Dining Room / Kitchen Open Plan, Guest WC, 1 Bedroom En Suite, Covered / Uncovered Veranda​
First Floor Description: 3 Bedrooms (1 Master Bedroom En Suite / Walk In Wardrobe), Main Bathroom, Covered Veranda, Laundry / Storage Area
Features and Provisions
- Plot Size: 490m2
- Covered Area: 195m2
- Verandas: Covered 53m2 / Uncovered 44m2
- Parking Side by Side: 36m2
- Available Space for Roof Garden: 55 m2
- Provision for swimming pool size 8x4
- Provision for underfloor electric heating
- Provision for electric car charger
- Photovoltaic panels 4kwh included
- Provision for electrical shutters
- Provision for electric gate
- Provision for fireplace
- Electric quick water heating and pressure system included
Floor Plans
Overview
Ground Floor Plan
1st Floor Plan



698B | SOLD
Detached Luxury Villa | SOLD
Villa is located on a hill in Erimi area in Limassol with panoramic views of Limassol and Episcopi bay. with easy access to the Limassol and Pafos highway, 10 minutes from the center of Limassol and 30 minutes to Pafos Airport, and 10 minutes to the famous Curium Beach. This villa is a perfect modern design home that will take care of all your family needs with a very spacious garden area.
Ground Floor Description: Living Room / Dining Room / Kitchen Open Plan, Guest WC, 1 Bedroom En Suite, Covered / Uncovered Veranda​
First Floor Description: 3 Bedrooms (1 Master Bedroom En Suite / Walk In Wardrobe), Main Bathroom, Covered Veranda, Laundry / Storage Area
Features and Provisions
- Plot Size: 510m2
- Covered Area: 196m2
- Verandas: Covered 19m2 / Uncovered 38m2
- Parking Side by Side: 32m2
- Available Space for Roof Garden: 55 m2
- Provision for swimming pool size 8x4
- Provision for underfloor electric heating
- Provision for electric car charger
- Photovoltaic panels 4kwh included
- Provision for electrical shutters
- Provision for electric gate
- Provision for fireplace
- Electric quick water heating and pressure system included
Floor Plans
Overview
Ground Floor Plan
1st Floor Plan



Amenities
A Efficiency Rating
Thermal Insulation
Fast Water Heater
Provisions for Surveillance System
Fencing & Gating
Provisions for Window Roller Shutters
Provisions for Swimming Pool
Photovoltaic System
Provisions for Fireplace
Provisions for Underfloor Heating
















